Loading...

ქირავდება კომერციული ფართი

თბილისი / კოსტავს ქუჩა

  • 4
  • 2235 კვ.მ 2

აღწერა

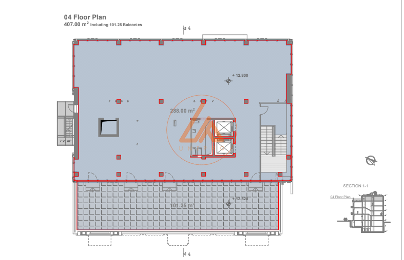
ქირავდება ცალკე მდგომი შენობა ვერაზე, ფილარმონიის მიმდებარედ. ობიექტი არის ჯამში 2232.25 კვადრატული მეტრი ფართობის თანაბრად განაწილებული სართულებზე. კვადრატულის ღირებულება არის 30 ევრო + დღგ

დამატებითი პარამეტრები
  • ბუნებრივი აირი
  • წყალი
  • კანალიზაცია
  • ელექტროენერგია

კომენტარები

მსგავსი განცხადებები

Top